Liverpool office details
Our Liverpool office is located on Old Hall Street, in the heart of Liverpool's commercial district. We have almost 700 people based in our Liverpool office, who act for clients across the UK and internationally.
As well as serving the people of Liverpool, we operate in the surrounding areas such as North Wales, Ormskirk, Southport, St Helens and Wirral.
Our Liverpool solicitors offer a complete range of legal services to businesses and individuals.
We can trace our roots in Liverpool back to 1827 when one of our founder law firms, Rutherfords, was established and we're proud to have grown from those roots to become a leading law firm with a strong presence in Liverpool.
Other offices near Liverpool: Leeds and Manchester
Get driving directions- Phone:
- +44 (0)345 073 9900
- Address:
- 100 Old Hall Street, Liverpool, L3 9QJ
- Opening hours:
- Mon – Fri: 8:30am – 5:30pm Sat – Sun: Closed
- SRA Number:
- 463329
Parking and arrival
- The nearest accessible parking to the Liverpool office is located on Old Leeds Street. Bixteth Street also has metered parking.
- Turn left on to Old Leeds Street immediately before the Weightmans sign. Parking bays are available on both sides of the road, disabled badge holders can park for 3 hours.

- Alternatively, there is a drop off point outside of Weightmans reception.
Building access
Access via Weightmans' front revolving door is via a step and manual revolving door. Steps with a handrail then lead up to the reception desk.
To avoid using steps, a ramp is located to the right of the revolving door. When at the top of the ramp, turn left and enter via the sliding door, which is opened by reception staff inside.

If you require assistance to get up the steps or ramp, please inform the person you are coming to see before your visit.
Interior navigation
- Lighting in the reception area is controlled by movement sensors. However, visitors using meeting rooms will be able to turn the lights on and off.
- There is also a wellness room available in the client with informal seating
- Doors to all rooms are 85cm wide
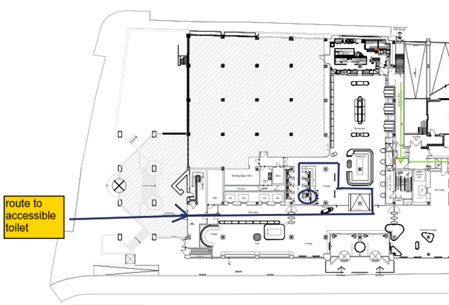
- There is level access to the toilets in the client suite. Accessible toilets are located in the Plaza reception. Plans of the client suite and plaza reception are shown below.


- Outside the client suite on the ground floor of the plaza are stairs and lifts you can take to Weightmans on the 1st floor
- The entrance doors to the first floor are manually operated, heavy wooden doors on an access control system. You will need a swipe card or to be accompanied by a member of Weightmans staff to enter in line with our information security policy.
- The 1st floor office is open plan with internal meeting rooms, the doors to the meeting rooms are 85 cm wide.
- Accessible/all gender toilets are available at both ends of the 1st floor, door width 92cm.
Amenities & Facilities
- Accessible toilets are located on the ground floor of the plaza, accessible using a ramp and at either side of the 1st floor.
- The ground floor accessible toilet cubicle has a door width of 1m and space for a wheelchair, sink and hand dryer
- In the client suite, we have a wellness room, a quiet space with comfortable chairs.
- Assistance dogs are welcome.
- Easy-read or large print materials are available on request
Assistance in the event of emergency
Please contact the office manager, Jo Thompson, on jo.thompson@weightmans.com or +44 (0)151 243 9881 ahead of your visit if you would require assistance in the event of an emergency invacuation or evacuation.
Accessibility information
Our solicitors in Liverpool
Many of our solicitors in Liverpool are recognised by the leading legal directories as being leaders in their fields.
Key services offered by our Liverpool solicitors
Awards and accreditations
-
Chambers & Partners 2026
Named a top ranked firm by Chambers and Partners 2026
-
Legal 500 2026
Named a leading firm by Legal 500 2026
-
ISO 14001
Certified to ISO 14001 standard in environmental management
-
ISO 22301
Certified to ISO 22301 standard in business continuity
-
ISO/IEC 27001
Accredited to ISO/IEC 27001 standard in infromation security
-
ISO 50001
Certified to ISO 50001 standard in energy management
-
Cyber Essentials Plus
A Cyber Essentials Plus accredited firm
-
Lexcel
A holder of the Lexcel Legal Practice Quality Mark
-
National Diversity Awards
Nominated as company of the year
-
Ecovadis Rating 2025
Awarded gold status in September 2025
-
Top Employer 2025
We were rated top employer of 2025
-
Living Wage Employer
We have been recognised as a Living Wage Employer.
Our charity and community work
As part of our commitment to corporate social responsibility and to being a positive influence on the communities in which we operate, each of our offices nominates a local charity to support and undertakes a number of pro bono activities in support of their local community.
Our Liverpool office's current nominated charity is The Clatterbridge Cancer Charity, which ensures that cancer patients receive the best cancer treatment and funds life-saving research. Our community work is diverse and ranges from the lawyers in our Liverpool office providing pro bono legal advice as part of the University of Liverpool's Liverpool Law Clinic, visiting local primary schools to assist children with their reading skills and assisting small charities or community initiatives.
Learn more about our CSR programme
How to get to our Liverpool office
By train
Liverpool Lime Street is the main train station serving Liverpool and is around a 15-minute walk from Old Hall Street. From either Lime Street or Liverpool South Parkway, you can also take the Merseyrail Northern Line to Moorfields Station, which is just a 2-minute walk from the office.
By bus
Liverpool’s Queen Square and Liverpool ONE bus stations are well connected to regional and local routes. From either station, it’s around a 10 minute walk or a short taxi ride to Old Hall Street. For live timetables, visit Merseytravel.
By car
The office is easily accessible from the M62, M57, and M58 motorways. Follow signs for Liverpool City Centre and then the Waterfront/Commercial District.
There are several nearby car parks, including Pall Mall and Liverpool Capital Car Park.
Get driving directionsBy air
Liverpool John Lennon Airport is approximately 30 minutes away by taxi. Public transport options include regular bus services to the city centre or a train from Liverpool South Parkway.
Our Liverpool office in the news
A New Kind of Local Government Reform?
Simon Goacher explores the legal and governance challenges facing newly elected Reform UK councils as they transition from opposition to administration.
Weightmans names new office head for its Liverpool base
Insider reports on the appointment of a new Regional Office Head for our Liverpool office.
Weightmans strengthens female leadership with new equity partners
The Business Desk reports on the appointment of two new female Partners to the firm's equity.